Wohnen
Umbau eines Bunkers in ein Multifunktionsgebäude
Ort: Herne
Fertigstellung: 2022
Projekttyp: Umbau
Leistungsphasen: 1 – 9
Bauherr: we house Herne GmbH & Co. KG
Entwurf und Ausführung: dk architekten
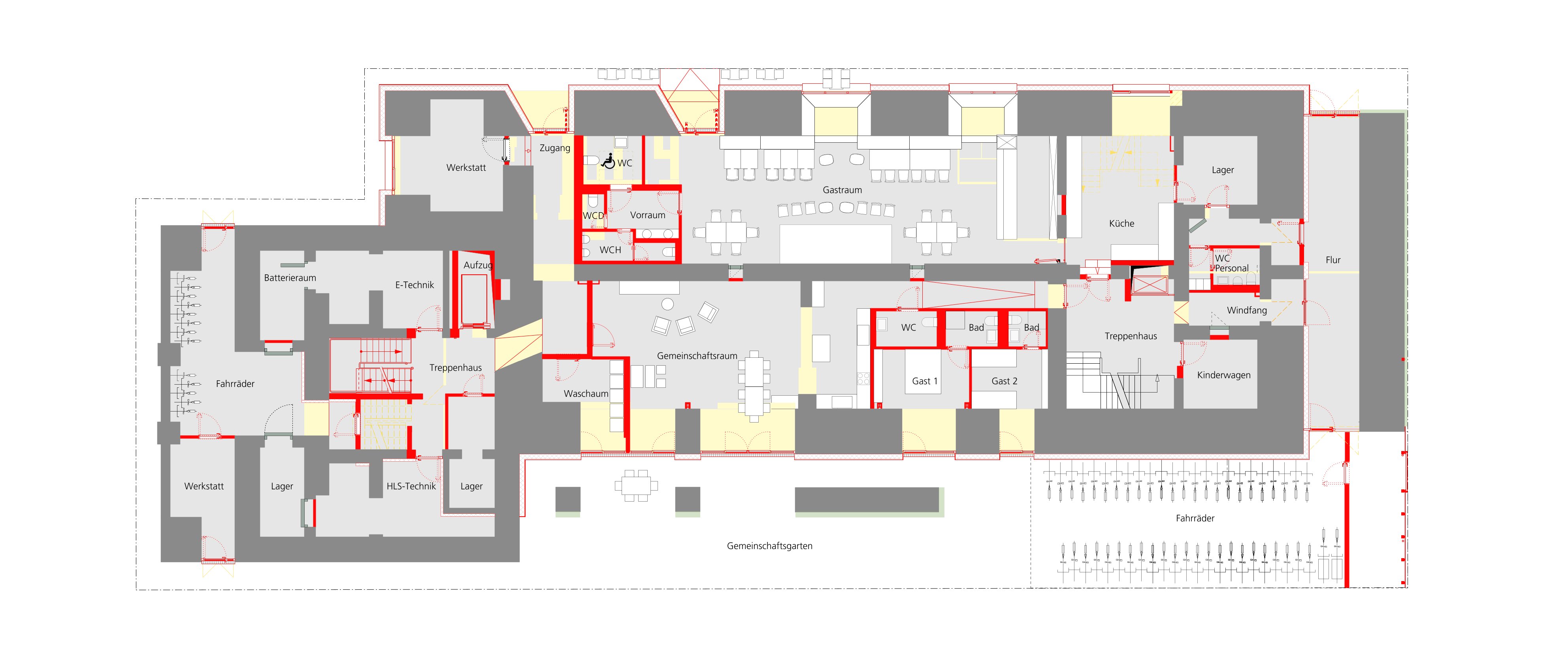
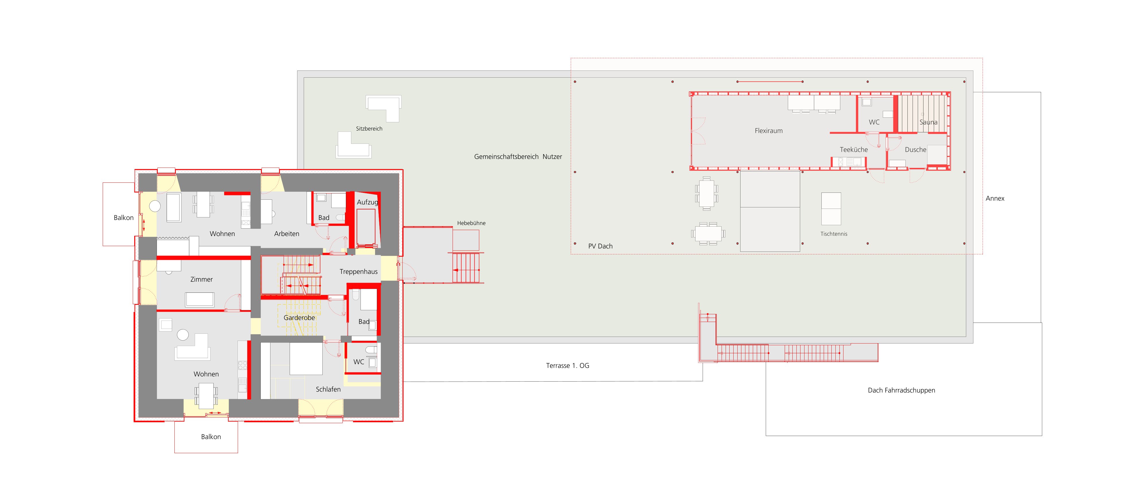
Von der we house Herne GmbH & Co. KG wird ein bestehender Hochbunker aus dem 2. Weltkrieg in ein Wohngebäude mit Restaurant und Indoorfarm umgebaut. Der bestehende Gebäudekomplex besteht aus zwei verbundenen Einheiten aus achtgeschossigem Turm und viergeschossigem Riegel. Das Wohngebäude erhält im EG und auf der Dachfläche des Riegels Gemeinschaftsräume und Flächen zur gemeinschaftlichen Nutzung.
Geplant wurde ein außergewöhnliches und nachhaltiges Wohnprojekt, das professionell organisiertes gemeinschaftliches Wohnen für einen komfortablen Lebensstil mit einer zukunftsfähigen Ökobilanz für die Bewohner vereint.
Fotos: we house Herne / dk architekten
Dicke Mauern und Türen: Wie lebt es sich im Weltkriegsbunker?
